Tianjin 河東区 House 2LDK
※ Annual Contract
| property ID | YSJ-20240701-03-YSJ-4-702-1030-C |
|---|
| Area | Railway / Station | Layout | rent |
|---|---|---|---|
| Area Tianjin / 河東区 |
Railway / Station
2 min.
9号線by walk 大王庄駅 |
Layout2LDK | Rent
元 9,500 / monthly
|
| Area | Tianjin / 河東区 |
|---|---|
| Railway Station | 9号線/大王庄駅 |
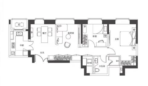
Basic Information
| Extent | 123 ㎡ |
|---|---|
| Type | House |
| Year Built | 2013 |
| Stairs | 7 Floor |
Contract Information
| Room Type | Apartment |
|---|---|
| Contract term | Annual Contract |
| Move-in period | 要相談 |
| Rent | 元9,500 / monthly |
| administrative expenses | confirmation required |
| commission | 1month |
※管理費は、契約の条件やタイミングにより
変更となる場合がありますので目安としてご確認ください。
Railway / Station
| Railway Station |
|---|
|
2 min. by walk
9号線/大王庄駅 Station
|
Facilities & Conditions
| parking | Parking lot available | ||
|---|---|---|---|
| Building Equipment |
|
||
| Room Equipment |
|
||
Please contact ABLE NW TIANJIN to inquire about this property.
※
Due to the fluid nature of properties in the CHINA, if we are unable to confirm the availability of a property, we will refer you to a similar property that meets your needs.
We will introduce you to similar properties that meet your needs. Therefore, please note that the properties listed are for reference only.
| Related Links | Area | Tianjin | District | 河東区 |
|---|---|---|---|---|
| Railway | 9号線 | |||
| Station | 大王庄駅 | |||







